10, 20 & 30
Eastbourne Terrace


Design of air conditioning services incorporating closed loop boreholes and photo voltaic louvres to rear elevation and primary air systems with heat pump thermodynamic energy recovery.

Find Out More

Advanced MEP Design & Client Consultancy


Client: Land Securities Properties Limited

Jnoad Ltd provided full mechanical, electrical, and public health services across three commercial buildings within the Eastbourne Estate, ranging from six to eighteen floors of prime office accommodation. Our consultancy covered technical design, environmental control, system coordination, and full commissioning of both conventional and renewable infrastructure.

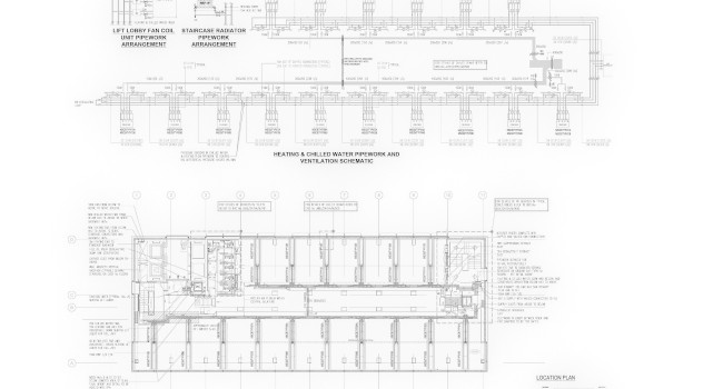
At Building 10, we delivered a four-pipe fan coil system with rooftop AHUs, closed-loop geothermal boreholes, and dual-source water supply via mains and a new artesian well. Zoned ventilation and capped riser connections future-proofed the build for tenant flexibility.

Building 20 encompassed MEP services across eighteen floors, featuring active chilled beams, low-energy chillers, solar panels, comprehensive BMS control, and separate boosted CAT5 services. Specialist tenant cooling and smoke ventilation systems ensured regulatory compliance and operational adaptability.

For Building 30, our mechanical scope included rooftop and lower ground plant, air conditioning via ceiling-mounted fan coils with integrated return air diffusers, advanced air handling plant with gas-fired humidification, and comprehensive ventilation for toilets, tea points, showers, and plantrooms. Geothermal energy from boreholes supplemented rooftop chillers and gas boilers, contributing to site-wide renewable goals.

Across all three buildings, our works prioritised intelligent system integration, life-cycle efficiency, and readiness for future tenant enhancements—embodying best-in-class delivery for high-performance commercial environments.

As part of the project delivery, Jnoad Ltd was novated to the contractor to provide continued professional services in connection with the building services engineering scope. This included ongoing design coordination, technical advisory input, compliance validation, and support throughout installation, commissioning, and handover phases—ensuring the integrity of the MEP design was maintained and fully realised in line with the original specification and client objectives.

Project Details & Design Wins

Core Deliverables That Set the Standard


Geothermal Integration Across All Building

Closed-loop boreholes beneath the car park enabled sustainable heating and cooling for all three schemes—serving ground source chillers and heat pumps that reduce reliance on conventional plant.

Dual Water Infrastructure with Chlorine Dioxide Treatment

Buildings 10, 20, and 30 utilised water from both mains and artesian wells—integrated with separate boosted cold, drinking, and CAT5 services, all treated via chlorine dioxide systems.

Intelligent Ventilation & Air Conditioning Strategies

Building 30 featured low-profile fan coil units with filtered air delivery and integrated lighting diffusers; Buildings 10 and 20 used fan coils, chilled beams, and rooftop AHUs tailored to functional zones with smart zoning and capped connections.

Centralised BMS with Floor-by-Floor Control

A fully programmable Building Management System was deployed across all sites—including outstations, heat exchangers, metering, pressurisation, and intelligent controls to optimise performance and maintenance visibility.

Contact Us


Ready to start your next project with us? Send us a message and we will get back to you as soon as possible!